Discuz! Board

 找回密码
 立即注册
搜索
热搜: 活动 交友 discuz
查看: 2467|回复: 0

[大公地产] [售]西南近城区 Marleston | 良好地段,优质学区,安逸适居

[复制链接]

207

主题

706

帖子

1万

积分

合作地产企业

积分
13609
发表于 2019-9-16 10:56:28 | 显示全部楼层 |阅读模式 来自: 澳大利亚
二手房
区域: 南区 
详细地址: 12 Bakers Road, Marleston
房产类型: House
卧室: 3间
车位: 1个
卫生间: 3间以上
面积: -
价格区间: 澳元
参考价AU$: -

徜徉于静谧安全的林荫道路之间,休憩于充满活力的商业店铺之内,出则体验周边完善的配套设施,入则享受良好宜居的住所氛围,快速往来于城市与田园之间,在12 Bakers Road,为您现代适居的生活提供无限可能。

项目概述12 Bakers Road, Marleston3房 3卫 1车位售价:请联系销售 Adi 0413 215 186

物业位于西南近城区域,共有3套全新的独立产权的别墅,Lot 1~3房屋土地组合,房屋均为三室三卫一车位的户型配置。

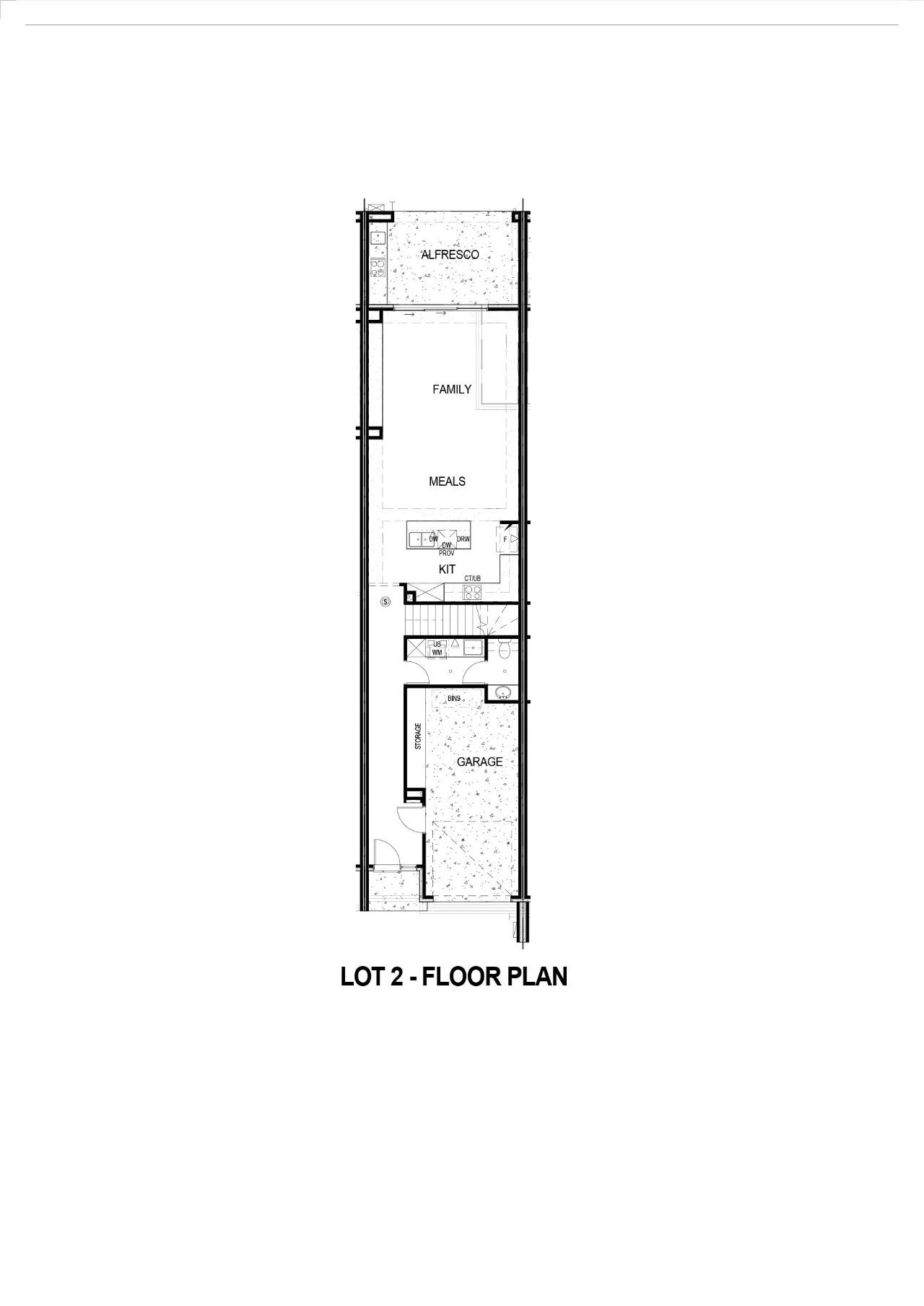
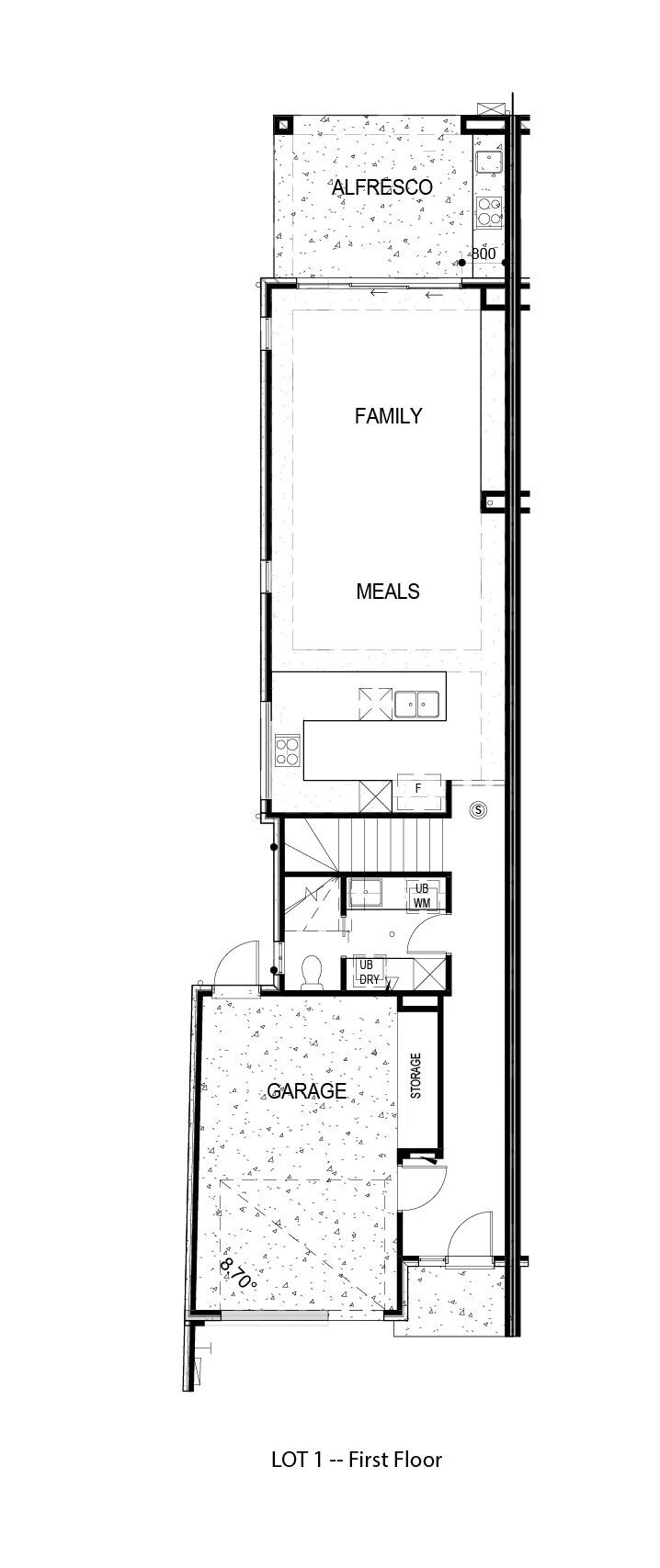
物业隶属便捷、安全的Marleston区域,交通便捷,周边设施丰富,教育资源优越。建筑设计有独特典雅的现代化建筑风格,设有带开放式厨房的大型起居区,位于二层的三间卧室,三间浴室,自动卷帘车库,满足各方面生活使用所需。

物业周边教育资源卓越,划拨为阿德莱德高中范围内,坐拥一流资源配置。

物业区位优越,距离中央商务区仅有5分钟车程,距离海滩也仅有15分钟车程,临近Richmond商业街区,各类店铺鳞次栉比。

物业为房屋和土地组合,施工正在进行之中,优惠预售中。








建筑规格

建筑规格:

  • 单车库,带自动升降门

  • 车库直接入户

  • 一层开放式厨房,起居室,餐厅

  • 厨房全石材台面

  • 丰富的储藏空间

  • 品牌不锈钢器具,包括燃气灶具和洗碗机

  • 楼下的洗衣房和化妆间

  • 楼上有三间卧室(全部带内置衣柜)

  • 主卧室配有套间浴室

  • 主浴室配有独立淋浴和浴缸

  • 浴室全瓷砖设计

  • 易于维护的庭院和户外娱乐空间

  • 管道式逆循环空调



户型平面:
LOT 1

LOT 2
LOT 3
LOT 4




项目为房屋土地组合,现处于优惠阶段有机会节省数千澳元的印花税欢迎联系我们了解详情期待您的访问!

售价请咨询销售
欢迎预约看展房
联系电话: 0413 215 186,Aditya




更多房源信息请关注





回复

使用道具 举报

您需要登录后才可以回帖 登录 | 立即注册

本版积分规则

Archiver|手机版|小黑屋|Comsenz Inc.

GMT+9.5, 2026-1-12 01:38 , Processed in 0.040548 second(s), 21 queries .

Powered by Discuz! X3.4

Copyright © 2001-2021, Tencent Cloud.

快速回复 返回顶部 返回列表