本帖最后由 启泰房地产 于 2023-4-26 11:31 编辑
拍卖 | 4月15日本周六11:45-12:15PM开放 5月6日周六10:00AM现场拍卖 | 地块 | | 咨询 | |
位于阿德炙手可热的置业区域Campbelltown,距离CBD约7公里,日常生活便利舒适,步行即至公交站点,驱车片刻即至Paradise Interchange,轻松乘坐东北区专属快线公交O’Bahn抵达市中心;靠近多所热门餐厅,尽情享受当地咖啡餐馆带来的恣意生活。
设施完整的区位为周末休闲时光提供无限乐趣,毗邻绿树成荫的Fourth Creek小径,短途车程即至Newton Village Shopping Centre 和Foodland Felixstow,临近Thorndon Park,休闲运动中心The ARC Campbelltown, Felixstow Reserve和Linear Park保护公园。划分为St Joseph's School Hectorville和East Torrens Primary School以及Charles Campbell College学区。
 
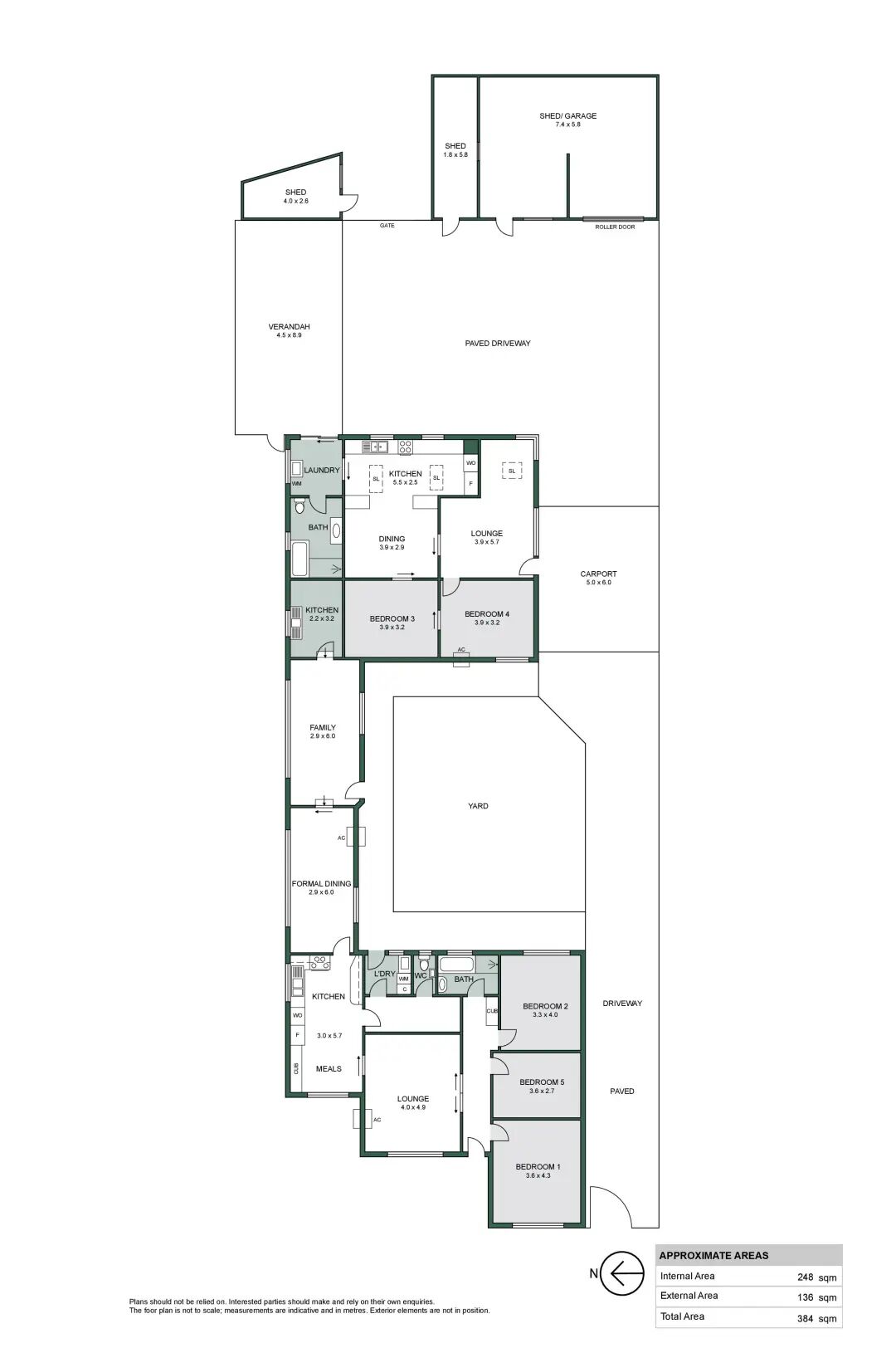
这座建于1960年的完美家庭住宅坐落于一条无直通车辆的小路上,周围环境清新且安静惬意。占据约1010 平方米地块,可向市政府获得开发批准(STCC),非常适合开发商、投资者前来挖掘这份充满无限潜力的宝藏!

外墙由砖砌而成,内部拥有许多宝贵的惊喜。房产由两个相邻且互通的独立住宅组成,前半部分为三居室家庭住宅,而后半部分为两居室的亲子住宅,中间通过家庭休息室与正式用餐区域相连;均拥有通向户外区域的通道,与各自的烹饪区域。
  
地毯近期经过全面翻新,为迎接翻新者前来打造梦想家园做好了准备!房产还可以根据生活需求改造区域划分,拥有无限的灵活性!
     房屋特色 独立产权(Torrens title),抵达市区约7公里 宽敞易打理地块,室内空间为248平方米 两间相邻的住宅,拥有共五间宽敞卧室 安全储物棚,工具棚,带锁的车库,车棚 划分为临近的St Joseph's School Hectorville 和East Torrens Primary School学区 划分为Charles Campbell College学区 步行即至公交站点,驱车片刻即至Paradise Interchange 靠近热门餐厅包括Café Brunelli, Bar Mercato, 当地咖啡馆和餐馆 短途车程至Newton Village Shopping Centre 和Foodland Felixstow 片刻即至Thorndon Park, 休闲运动中心ARC Campbelltown、Felixstow Reserve保护公园、Linear Park公园
详情请咨询  林德旭 Clarence 微信:clarence_ling 电话:0413 265 155
 销售经理 添加好友咨询详情  好看吗?喜欢的话就点一下吧  |